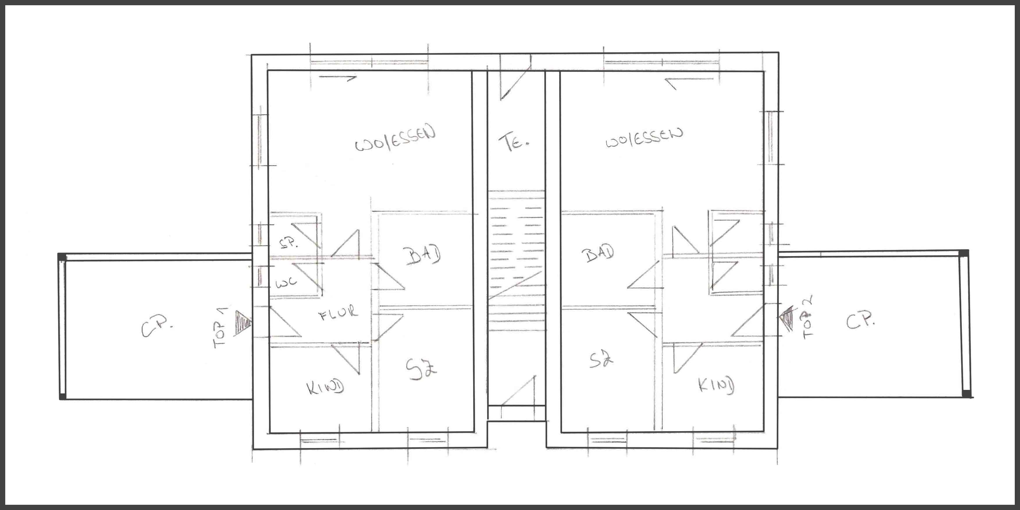
Entwurfsplanung:
Bei einem unverbindlichen Beratungsgespräch nehme ich mir gerne die Zeit, um Euch und eventuelle erste Vorstellungen von Eurem neuen Eigenheim kennenzulernen. Im Vordergrund dieses Gespräches stehen in erster Linie Bebauungsbestimmungen, Grundstücksgröße - und lage. So können wir vorab gleich feststellen, was generell machbar ist. Dabei entsteht dann auch schon eine erste grobe Skizze des Grundrisses, die schlussendlich als Grundlage für die weitere Planung dient.Nach dem Beratungsgespräch geht es an den Entwurf Eures Hauses. In dieser Phase geht es darum, das Projekt genauer zu präzisieren und noch weiter an Eure Anforderungen und Vorstellungen anzupassen. Bei der Planung stehen dabei allerdings nicht nur die baulichen Möglichkeiten im Vordergrund, sondern es sollte auch der Kostenfaktor nicht außer Acht gelassen werden.
In der gesamten Entwurfsphase stimme ich mich immer wieder mit zertifizierten Baumeistern ab, die die gesamte Planung als durchführbar, statisch einwandfrei und baurechtlich in Ordnung beurteilen sollten.




© Aiterbichler - Zeichenbüro -